Holz Trennwand & Schiebetür aus Metall verwandeln offenes Arbeitzimmer in ein Gästezimmer
Neutrale Farbtöne und natürliche Materialien vereint dieses moderne Einfamilienhaus, das für ein Paar und seine zwei Hunde designt wurde. Es befindet sich in Spanien und genauer gesagt in Madrid und besitzt eine Wohnfläche von 200 Quadratmetern, die bestens ausgenutzt wurden, um perfekten Wohnkomfort zu schaffen.
Die Architekten von Ventura Estudio schufen ein offenes Wohnkonzept mit gleichmäßig ineinander überfließenden Bereichen und offenen Räumen, ohne dabei die nötige Privatsphäre zu vergessen. Auf welche Weise diese garantiert wird und welche Materialien für die Einrichtung verwendet wurden, erfahren Sie in unserem Artikel. Werfen Sie einen Blick in die Räumlichkeiten des Hauses und finden Sie heraus, zu welchem Zweck die praktische Holz Trennwand genutzt wurde.
Holz Trennwand kombiniert mit resistenten Materialien
Wie bereits erwähnt, besitzt das junge Paar zwei Hunde. Aus diesem Grund wurde Wert auf Materialien gelegt, die ihnen standhalten können. Nichtsdestotrotz wurde ein warmes, modernes und angenehmes Ambiente geschaffen durch die Verwendung gemütlicher Farben und zeitgenössischer Materialien. So wechseln sich Beton, Betonoptik und Holz regelmäßig ab und machen das zum Teil monochrome Einrichtung abwechslungsreich. Das gilt auch in Bezug auf die Farben, wo Schwarz der Akzent ist und für unterschiedliche Möbelstücke und Wände gewählt wurde. Nicht zu übersehen ist die originelle Metalltür zum Schieben, die Zugang zum Gästezimmer mit eigener Terrasse bietet und nach Belieben verschlossen sein oder offen stehen kann, ohne dabei zu stören.
Auf diese Weise entstehen nahtlose Zugänge zu allen Räumen. Diese offene Raumgestaltung wird optisch durch die Verwendung eines einzigen Bodenbelags für den gesamten Innenbereich unterstützt. Außerdem ist die schwarze Schiebetür aus Metall in der Küche nicht die einzige Möglichkeit für offene Räume in diesem Haus. Hinzu kommen nämlich auch mehrere hübsche Trennwände aus Holz, die zwar schlicht sind, aber Wärme ausstrahlen und durch ihre schlichte Optik modern und stilvoll wirken. Zu finden ist eine Holz Trennwand innen im Schlafzimmer in Form einer langen Falttür, die die Rolle einer Jalousie einnimmt und den Schlafbereich vom Fenster und dabei gleichzeitig auch vom Flur trennt. Eine stationäre Wand im selben Raum trennt wiederum den Schlafbereich vom Bad. Zu erwähnen ist auch die zweite Metalltür in Schwarz im Essbereich, die zum Schlafzimmer führt.
Offene Wohnräume
Ansonsten kann man sagen, dass das Haus in Form von zwei Achsen aufgeteilt wurde, die horizontal und vertikal verlaufen. Ihr Schnittpunkt befindet sich im Essbereich, der auch als Arbeitbereich funktioniert. Im Prinzip lassen sich alle Wohnräume je nach Tageszeit für unterschiedliche Aktivitäten nutzen. So dient das Gästezimmer, wenn es nicht gerade bewohnt wird, als Heimbüro. Das Bett ist hier direkt in der Wandbekleidung aus Holz eingebaut und kann bei Bedarf heruntergeklappt werden. Um den Schnittpunkt der erwähnten Achsen herum können alle anderen Wohnräume und -bereiche betreten werden.
Versteckte Stauräume hinter Holzwand
Schiebetüren aus Glas verbinden nahtlos Wohnraum und Terrasse: Ein Ferienhaus in den USA
Die Schiebetüren aus Glas sind echte Alleskönner: Im Sommer verbinden sie nahtlos innen und außen, im Winter lassen sie reichlich Sonnenlicht
Die Wände sind nicht die einzigen Vertreter dieses Materials. Auch in der Küche ist es in großer Menge zu finden. Dort erwecken die Panelle als handele es sich um eine Holz Trennwand oder aber um eine Wandverkleidung. In Wirklichkeit sind dies aber Einbauschränke, die zum Verstauen von Koch- und Essgeschirr und anderen Utensilien dienen. Damit das viele Holz nicht zu viel des Guten wird, wurden schwarze Elemente integriert. Solche sind neben der Kücheninsel auch eine Nische im Einbauschrank und die bereits erwähnte Metalltür.
Neutrale und angenehme Hauptfarben
Ganze vier Hauptfarben sind im Haus zu finden und zieren auf unwahrscheinlich harmonische Weise den Innenbereich. Das ist einmal die warme Holzfarbe, die für verschiedene Möbel, die Holz Trennwand im Schlafzimmer und für andere Wände genutzt wird. Die zweite Farbe ist Grau. Ein Blickfang in dieser Farbe sind unter anderem die Betonträger im Wohnzimmer. Grau sind aber auch das Sofa und der Bodenbelag, sowie die Vorhänge in Schlaf- und Wohnzimmer. Weiß ist die dritte Hautfarbe, die dem Interieur eine helle Atmosphäre verpasst und sich den beiden anderen Farben super anpasst. Weiß sind die Wände gestaltet, aber auch einige der Möbelstücke wie das eingebaute Regal im Wohnzimmer oder die Eames-Stühle im Essbereich, ein Schrank und Regal in der Küche und verschiedene Dekoartikel.
Die schwarze Farbe ist zwar eher ein Akzent und ein super Kontrast zu den anderen Farben und der Wand, wird jedoch gleichzeitig so zahlreich verwendet, dass sie auch als Hauptfarbe angesehen werden kann. Neben den bereits erwähnten Elementen in der Küche und den metallenen Schiebetür Systemen dient Schwarz auch als Farbe für die Waschbecken im Bad. Hinzu kommen viele kleinere Dekoartikel und Elemente wie Lampen, Türrahmen, Beistelltisch, Esstisch und Stuhlgestelle, die der Einrichtung auch gleich noch etwas Flair des Industrial Styles verpassen.
Betonoptik und mehr
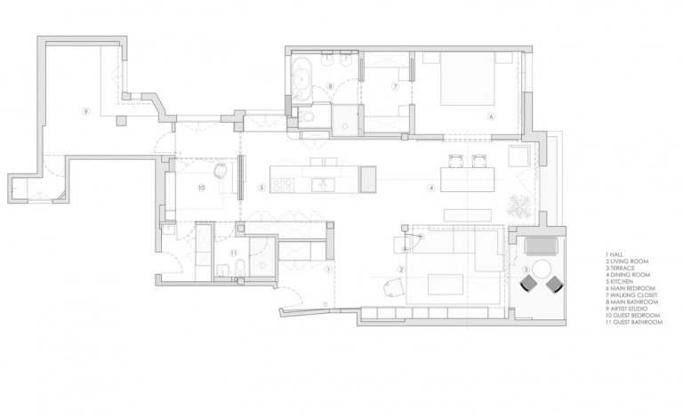
Im Folgenden können Sie sich das Haus noch einmal genauer von innen anschauen und erhalten einen Überblick nicht nur über die Einrichtung und Farbgestaltung, sondern auch über die Raumverteilung in der Vogelperspektive anhand des Grundrisses. Lassen Sie sich von der Einrichtungsidee mit Wand, Betonoptik- und Metallelementen, sowie von den offenen und zugleich multifunktionalen Räumen inspirieren und nutzen Sie Ihre Lieblingsideen für Ihren eigenen Hausbau.
Beton, Stein und Holz sind die Hauptmaterialien für drinnen und draußen bei dieser Villa
Stein und Holz als Materialien sind nur ein Teil des beeindruckenden Innen- und Außendesigns, wie wir Ihnen im Folgenden zeigen werden. Schauen Sie, auf welche Weise diese trendigen und angenehmen Materialien genutzt wurden, um das im Jahr 2018 fertiggestellte Haus zu einem wahren Schmuckstück zu machen.
Design von Ventura Estudio.
















