Futuristisches Atriumhaus mit Glasdach in Indien passt sich den Bedürfnissen der Bewohner an
Ein futuristisches Atriumhaus mit Glasdach in Indien lebt das Baukonzept spanischer Domizile auf und transportiert es ins Jahr 2020. Eine durchdachte Raumgestaltung und gelungene Materialkombination machen das „Cleft“ Haus zu einem Kunstwerk der modernen Architektur.
Das Projekt ist ein Beweis dafür, dass der Kreativität keine Grenzen gesetzt sind und selbst auf kleinen Grundstücken moderne und zugleich funktionale Villen gebaut werden können.
Ein futuristisches Atriumhaus mit Glasdach mitten in der Großstadt
Die Bauherren beauftragten die Anagram Architekten mit der Aufgabe, ein funktionales und gleichzeitig modernes Mehrgenerationenhaus zu bauen. Gerade die günstige Lage mitten in der Großstadt Nueva Delhi stellte aber die größte Herausforderung für die Architekten dar. Das schmale Grundstück ist in einer dicht bewohnten Gegend direkt an einer Schnellstraße gelegen. Die Auftraggeber wünschten sich ein modernes Gebäude mit reichlich verglasten Fronten, die das Sonnenlicht in die Innenräume eindringen lassen. Gleichzeitig wollten sie aber ihren Privatbereich vor fremden Augen schützen.
Inspiriert von den Hofhäusern in Spanien, haben sich die Anagram Architekten entschieden, das Wohnkonzept eines Hauses mit Innenhof modern zu interpretieren. Hofhäuser wurden ursprünglich in zwei Bereiche aufgeteilt, der erste war der Wohnbereich und der zweite der Arbeitsbereich. Im Mittelalter war es nämlich keine Seltenheit, dass Werkstätten direkt an das Haus angebaut wurden. Auch heutzutage bietet diese Bauweise viele Vorteile. Zur Straße hin geschlossen, öffnen sich die Hofhäuser zum Innenhof. Die Zimmer sind hell und gut belüftet. Häuser mit Innenhöfen bestehen meistens aus zwei, drei oder vier Bauvolumen, die sich bei Bedarf problemlos umwidmen lassen.
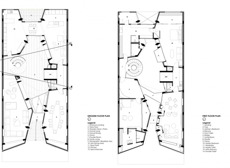
Aufgrund des kleinen Grundstücks haben sich die Architekten für eine besonders platzsparende und funktionale Variante des klassischen Hofhauses, nämlich ein Atriumhaus mit Glasdach, entschieden. Das Mehrgenerationenhaus besteht aus zwei vierstöckigen Bauvolumen. Eine Wendeltreppe verbindet sie zu einer Einheit und bietet gleichzeitig schnellen Zugang zum Atrium.
Stilvolle Raumgestaltung
Innen wirkt das Haus sehr offen und einladend. Zum einen, weil alle Zimmer zum Atrium blicken und reichlich verglaste Fronten das Sonnenlicht in die Wohn- und Schlafbereiche lassen. Zum anderen, weil Küche, Wohnzimmer und Essbereich nahtlos ineinander überfließen. Auch die Schlafzimmer – alle mit Balkons – sind großzügig geschnitten.
Satteldach modern interpretiert: Das "Origami" - Haus in Japan
Das Origami-Haus ist ein hervorragendes Beispiel für cleveres Baukonzept. Die Architekten haben das klassische Satteldach modern interpretiert und
Im ersten Bauvolumen wohnen die Eltern des Bräutigams, im zweiten Bauvolumen die junge Familie. Jeder Baukörper hat einen geräumigen Wohnbereich mit Küche, anliegendem Essplatz für sechs Personen und eine gemütliche Wohnlandschaft. Noch im Wohnprogramm: Ein Pool im Erdgeschoss, ein Lichthof, ein Heimkino und viele Schlafzimmer.
Alle Räume sind mit hochwertigen Naturmaterialien gestaltet. Granit, Marmor und Holz bilden ein reizvolles Ensemble und zieren Wände, Böden und Geländer. Indirekte und direkte Beleuchtung sind gekonnt miteinander kombiniert. Vom voluminösen Kronleuchter über die Wendeltreppe, den eingebauten LED-Leuchten im Heimkino bis hin zu den Dachleuchten im Atrium: Die Beleuchtung setzt Akzente und lässt die schöne Innenarchitektur sogar besser zur Geltung kommen.
Mit viel Phantasie und großer Aufmerksamkeit zu den Details ist es den Anagram Architekten gelungen, ein modernes und funktionales Haus mitten in der Großstadt zu kreieren. Es ist die perfekte Oase für die Großfamilie. Die Bewohner können sich entspannen, das Zusammensein genießen oder Freunde zu Gast einladen.
Die abgehängte Holzdecke als Akzent: Ein futuristisches Holzhaus in Südkorea
Die abgehängte Holzdecke als Akzent in der Innenarchitektur. Ein Haus in Südkorea präsentiert neues Konzept zur effektvollen Deckengestaltung.
Das Projekt für das moderne Atriumhaus wurde von den Anagram Architekten entworfen und verwirklicht.



















